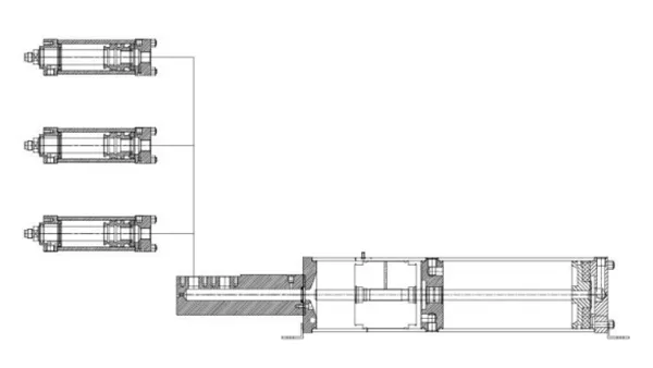
Пневмогидравлический привод (с выносным рабочим цилиндром), серия HZ
- Давление ≤6бар
- Усилие 2-2000кН
- Силовой ход штока 5-52мм
- Общий ход штока 100/200/250мм
Пневмогидравлический привод серии HZ сочетает преимущества пневматических и гидравлических систем, объединяя высокую скорость перемещения пневмоцилиндра с высокой удельной мощностью гидравлики. Данный привод представляет собой специально сконструированный цилиндр, требующий использования мультипликатора давления для подачи масла низкого давления на стадии быстрого подвода. После достижения позиции мультипликатор подает масло под высоким давлением для выполнения силового хода штока.
Рабочие параметры
| Модель | Диаметр цилиндра (мм) | Усилие прессования (кН, при входном давлении масла 250 бар) | Усилие подвода (кг, при давлении воздуха 6 бар) | Усилие возврата (кг, при давлении воздуха 6 бар) | Расход масла на 1 мм хода (V, см³) | Потери масла при подводе (V1, см³ на 50 мм) | Расширение шланга/потери (V2, см³ на 100 мм длины шланга) | Тип гидравлического шланга |
| |
50.00 | 48.00 | 115.00 | 90.00 | 2.00 | 2.20 | 0.50 | 3/8", высоконапорный шланг с двухслойной металлической оплеткой |
| |
63.00 | 76.00 | 185.00 | 130.00 | 3.10 | 3.40 | 0.60 | 3/8", высоконапорный шланг с двухслойной металлической оплеткой |
| |
80.00 | 108.00 | 260.00 | 210.00 | 4.40 | 4.90 | 0.60 | 1/2", высоконапорный шланг с четырехслойной металлической оплеткой |
| |
100.00 | 192.00 | 465.00 | 350.00 | 7.90 | 8.60 | 0.70 | 1/2", высоконапорный шланг с четырехслойной металлической оплеткой |
| |
125.00 | 300.00 | 720.00 | 580.00 | 12.30 | 13.50 | 0.70 | 1/2", высоконапорный шланг с четырехслойной металлической оплеткой |
| |
160.00 | 492.00 | 1182.00 | 887.00 | 20.10 | 22.00 | 0.70 | 1", высоконапорный шланг с четырехслойной металлической оплеткой |
Габариты и параметры хода цилиндра
| Модель | A1 | B (изменяется в зависимости от хода) | C | D | E | F (f7) | G | H | K | L | M | N | V | W | X |
| |
67 | 240+(ход-100) | 6-M8×15 | 54 | G3/8 | 40 | 10 | 25 | 25 | M16×1.5 | 22 | 19 | 12 | 7 | G1/2 |
| |
85 | 255+(ход-100) | 6-M8×15 | 65 | G3/8 | 52 | 10 | 35 | 25 | M22×2 | 20 | 17 | 18 | 7 | G3/4 |
| |
112 | 265+(ход-100) | 6-M10×20 | 88 | G1/2 | 70 | 10 | 45 | 35 | M30×2 | 25 | 36 | G3/4 | ||
| |
128 | 275+(ход-100) | 6-M16×25 | 100 | G1/2 | 75 | 10 | 50 | 30 | M30×2 | 25 | 41 | G3/4 | ||
| |
160 | 290+(ход-100) | 6-M20×30 | 115 | G3/4 | 80 | 15 | 56 | 47 | M39×2 | 35 | 46 | G1 | ||
| |
200 | 320+(ход-100) | 8-M20×30 | 150 | G3/4 | 115 | 18 | 70 | 52 | M42×2 | 40 | 60 | G1 |
Схема спецификаций

Цилиндр серии HZ (несколько единиц) + мультипликатор HMPSxxx-xxx
Пример подбора пневмогидроцилиндра
- Требование: 2 цилиндра с усилием 60 кН, ходом 130 мм, силовым ходом 12 мм, боковым расположением маслоподводящего отверстия, синхронным действием, длиной маслопровода 1200 мм, с опцией мультипликатора давления.
- Цилиндр HZ07 выдает максимальное усилие 76 кН при давлении масла 250 бар, что соответствует требованиям задачи. Для его работы выбран мультипликатор серии HMPS, который использует давление воздуха 6 бар для генерации максимального гидравлического давления 250 бар.
- A1 (Ход цилиндра): Поскольку требуемый ход составляет 130 мм, выбирается стандартный ход 150 мм. Общий объем для 2 цилиндров = 2×150×3.1 см³ (V) × 1.5 (коэффициент запаса) = 1395 см³
- A2 (Потери объема из-за длины шланга) = (1200/50)×3.4 см³ (V1) = 81.6 см³
- A0 (Общий требуемый объем масла низкого давления) = 1395+81.6 = 1476.6 см³
- B1 (Потребление цилиндров): объем для 2 цилиндров = 2×12×3.1 см³ (V) = 74.4 см³.
- B2 (Потери объема из-за расширения высоконапорного шланга) = 2×(1200/100)×0.6 см³ (V2) = 14.4 см³.
- B0 (Общий требуемый объем масла высокого давления) = 74.4+14.4 = 88.8 см³
- Итоговый подбор оборудования
Рабочие цилиндры: HZ07-150-02 (2 шт.)
Мультипликаторы давления: HMPS160.100.134 (1 шт.)
Шланги высокого давления: LH06-1200 (2 шт.)
Области применения
Формовка
Проведение испытаний
Штамповка
Рельефное тиснение (чеканка)
Вытяжка
Герметизация
Клепка
Резка
Гибка
Сжатие
Клинч-соединение (пуклевка)
Запрессовка






